UAE - Giardini privati
Dal 2012
Committenti privati
Abu Dhabi - Dubai (UAE)
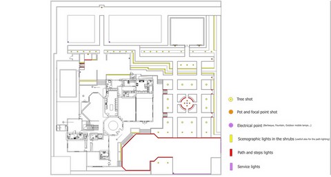
Giardini che rispondono alla cultura locale, con grandi salotti all'esterno, majlis, acqua in movimento e leggeri ombreggiamenti in tessuto...molte piante profumate e dal fogliame aromatico. Il tutto in una chiave moderna e in sintonia con le nuove architetture d'avanguardia degli Emirati Arabi Uniti.












